|
|
Descriptions:
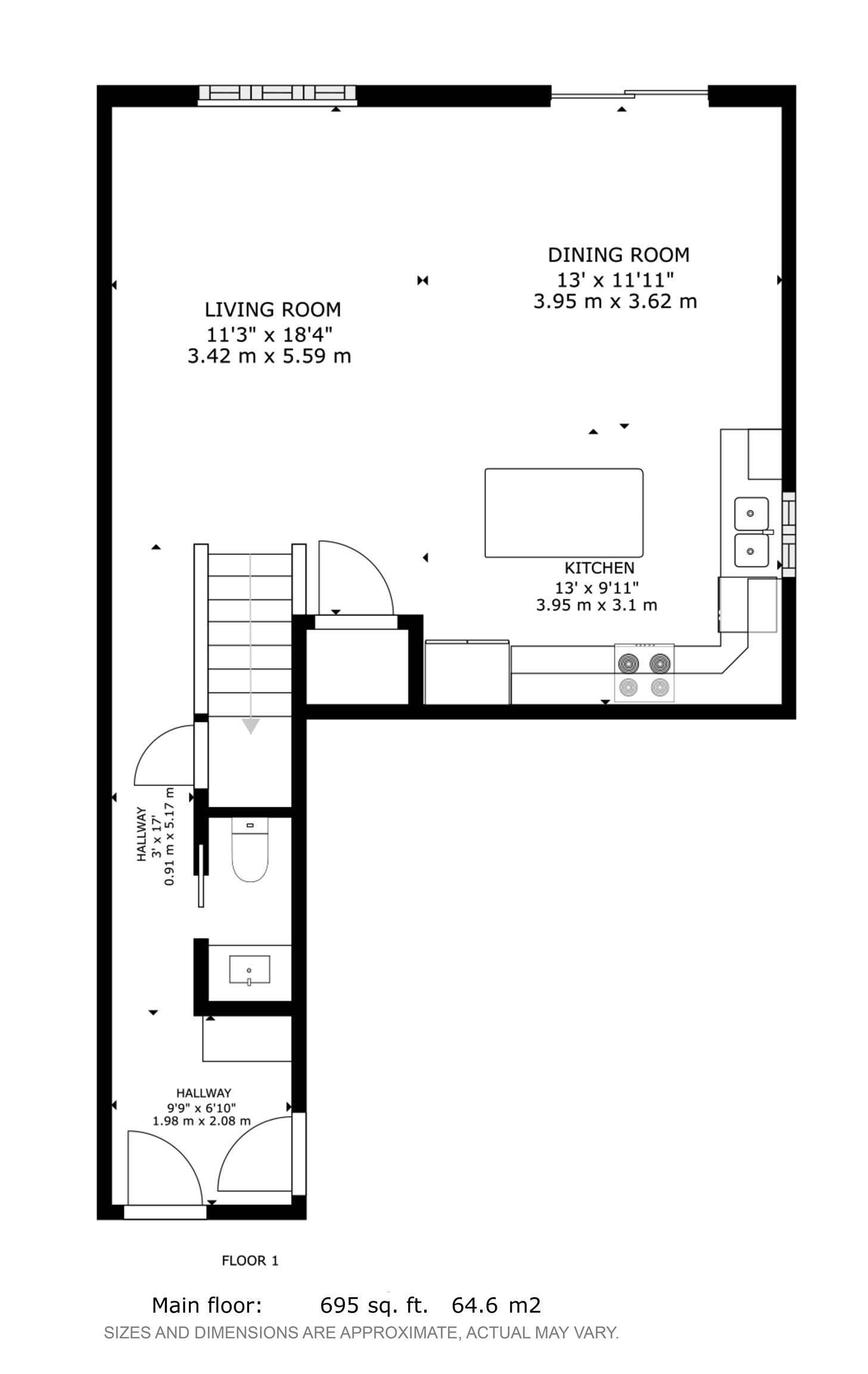
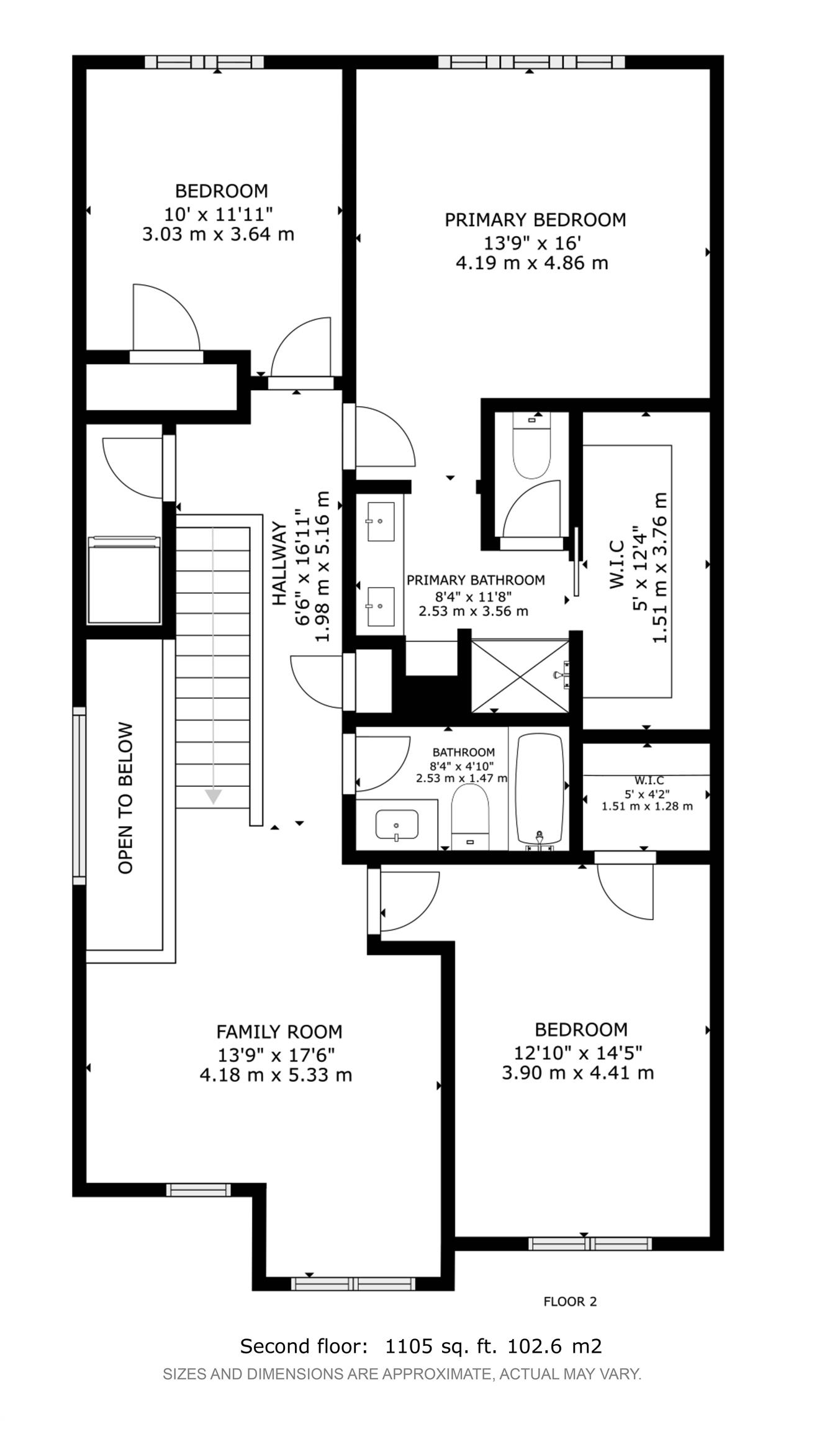
Set in the quiet rural charm of Thorsby, this thoughtfully designed 1,800 sq. ft. two story offers the perfect balance of space, light, & lifestyle. Built on an insulated slab, the home delivers both efficiency & comfort, no more cold, dark and often damp basements! Upstairs, you'll find 3 well appointed bedrooms, a full 4 piece bath, convenient upper laundry with closet storage, & a generous bonus room, easily convertible into a 4th bedroom to suit your needs. The flow of the main floor living, is perfect for entertaining. Complemented by granite countertops & stainless steel appliances, creating a space that feels both refined & welcoming. Thorsby offers a pace of life thats grounded, with its open skies, fresh Alberta air, and a strong sense of community. It's a place where families , flourish & theres room to breathe. Minutes from the Edmonton International Airport, Leduc & Pigeon Lake . A rare opportunity to live country quiet, while staying City close. *virtually staged for illustration purposes*
|
|
|
| Includes: |
|
Dishwasher-Built-In, Microwave Hood Fan, Refrigerator, Stacked Washer/Dryer, Stove-Electric |
|
|
|
|
|
| Site Influences: |
| Not Fenced, Not Landscaped, Playground Nearby, Schools, Shopping Nearby |
|
| Legal Description: |
| ACCESS Legal Description |
|
| Location & Listing Info: |
|
|
| Lot Shape: |
Rectangular |
|
|
|
|
|
| Property Info: |
|
| Property Type: |
Detached Single Family |
| Home Style: |
2 Storey |
| Year Built: |
2026 |
| Total Floor Area: |
1,800 sq. ft. |
| Front Exposure: |
North
|
|
|
|
|
|
| Exterior: |
|
| Exterior: |
Not Fenced, Not Landscaped, Playground Nearby, Schools, Shopping Nearby |
| Front Exposure: |
North |
| Roof: |
Asphalt Shingles |
|
|
|
|
|
|
|
|
|
|
| Rooms: |
|
| Total Bedrooms: |
3
(Bedrooms Above: 3)
|
| Bathrooms: |
Full: 2
/ Half: 1
|
| Rooms Above: |
8 |
|
|
|
|
|
| Additional Info: |
|
| Heating: |
Y |
| Basement: |
None, No Basement |
| Basement Type: |
None, No Basement |
| Floor Finish: |
Carpet, Vinyl Plank |
| Parking: |
Double Garage Attached |
|
|
|
|
|
|
|
|
|
|
|
|
|
|
|
 |
Contact Korey McIntosh -
5901 50 St #8, Leduc, Alberta, T9E 6J8
|
|
|
|
|
|
|
|
|
|
Copyright 2026 by the REALTORS® Association of Edmonton. All Rights Reserved. Data is deemed reliable but is not guaranteed accurate by the REALTORS® Association of Edmonton. Data was last updated April 13, 2026, 1:50 am. |
|
|
|
|
The data included on this website is deemed to be reliable, but is not guaranteed to be accurate by the REALTORS® Association of Edmonton.
MLS®, Multiple Listing Service®, and the associated logos are all registered certification marks owned by CREA and are used to identify real estate services provided by brokers and salespersons who are members of CREA. The trademarks REALTOR®, REALTORS® and the REALTOR® logo are controlled by The Canadian Real Estate Association (CREA) and identify real estate professionals who are members of CREA. Used under license.
|