|
|
Descriptions:
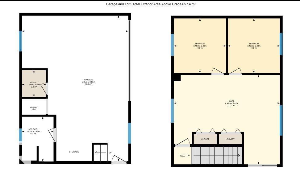
This Lakefront Bungalow in Grandview was completely renovated in 2023 with hardie board siding, stone, and shingles on the outside, with a complete make over on the inside! It also has a double detached garage with 701sq/ft of living space above! Through the fenced back yard, and complete wrap around deck to enter the home with an open concept Dining room, Kitchen, and Living room with large windows throughout providing lots of natural light and views of the lake. Two bedrooms and a 3 piece bathroom complete the floor plan of the modernized cabin home that also has Air Conditioning. The Garage is heated with a bathroom, and laundry with steps up to the guest living space. The loft is made up of two more bedrooms and a spacious family room with a patio door to the balcony deck. The property is beautifully landscaped with nothing left to do but unwind and enjoy life at the lake! The lot beside is also available for added space if needed.
|
|
|
|
|
|
|
|
| Site Influences: |
| Boating, Fenced, Flat Site, Golf Nearby, Lake Access Property, Lake View, Landscaped, Level Land, Playground Nearby, Private Setting, Schools, Shopping Nearby, Treed Lot, Waterfront Property, See Remarks |
|
|
| Location & Listing Info: |
| Neighbourhood: |
Grandview_CWET
|
|
| Nearest Town: |
Pigeon Lake Village |
| Lot Size: |
0.15
acres
|
|
|
|
|
|
| Property Info: |
|
| Property Type: |
Detached Single Family |
| Home Style: |
Bungalow |
| Year Built: |
2002 |
| Total Floor Area: |
842 sq. ft. |
| Road Access: |
Zone 95
|
|
|
|
|
|
|
|
|
|
|
|
|
|
|
|
| Rooms: |
|
| Total Bedrooms: |
2
(Bedrooms Above: 2)
|
| Bathrooms: |
Full: 1
/ Half: 0
|
| Rooms Above: |
5 |
|
|
|
|
|
| Additional Info: |
|
| Basement: |
No Basement |
| Basement Type: |
None |
|
|
|
|
|
|
|
|
|
|
|
|
|
|
|
 |
Contact Korey McIntosh -
5901 50 St #8, Leduc, Alberta, T9E 6J8
|
|
|
|
|
|
|
|
|
|
Copyright 2026 by the REALTORS® Association of Edmonton. All Rights Reserved. Data is deemed reliable but is not guaranteed accurate by the REALTORS® Association of Edmonton. Data was last updated April 28, 2026, 1:50 am. |
|
|
|
|
The data included on this website is deemed to be reliable, but is not guaranteed to be accurate by the REALTORS® Association of Edmonton.
MLS®, Multiple Listing Service®, and the associated logos are all registered certification marks owned by CREA and are used to identify real estate services provided by brokers and salespersons who are members of CREA. The trademarks REALTOR®, REALTORS® and the REALTOR® logo are controlled by The Canadian Real Estate Association (CREA) and identify real estate professionals who are members of CREA. Used under license.
|